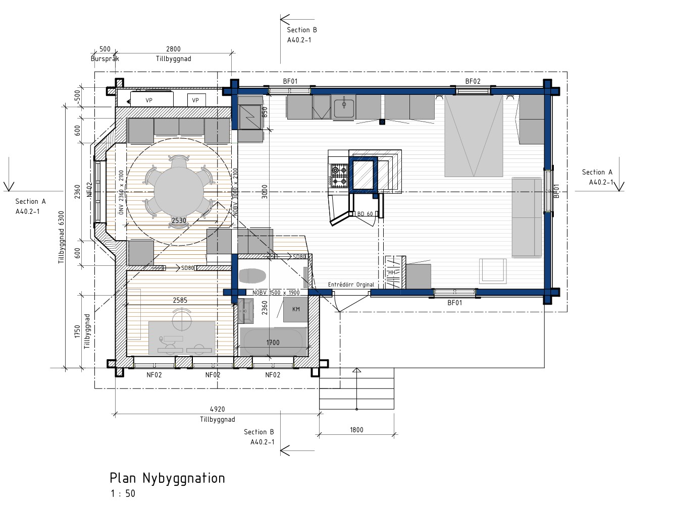
ARKITEKTURRITNINGAR
Skissarbete med gestaltning och utformning av volym Planlösning Fasadändringar

Jag är en arkitekt med masterexamen och över 20 års kunskap inom byggbranschen, där jag förenar teknik och design i allt från större och komplexa projekt till mer personliga lösningar.
För drygt två år sedan valde jag att starta mitt eget företag. Trots en utmanande lågkonjunktur har jag under denna tid framgångsrikt genomfört projekt som inte bara motsvarat – utan ofta överträffat – mina kunders förväntningar.
Jag erbjuder allt från skräddarsydda arkitekturlösningar till effektiva bygglovshandlingar, alltid med fokus på hållbarhet, kvalitet, funktion och estetik.
Tveka inte att höra av dig – tillsammans kan vi förverkliga din vision och skapa ditt drömprojekt.